Aparament două camere, Marăței, etaj 4/4 acoperit
Apartament 2 camere, 51,2 mp utili, circular, Mărăței, etajul 4/4…
35,000€ Negociabil
Piatra Neamt
De Vânzare, Oferta
95,000€ euro/negociabil


























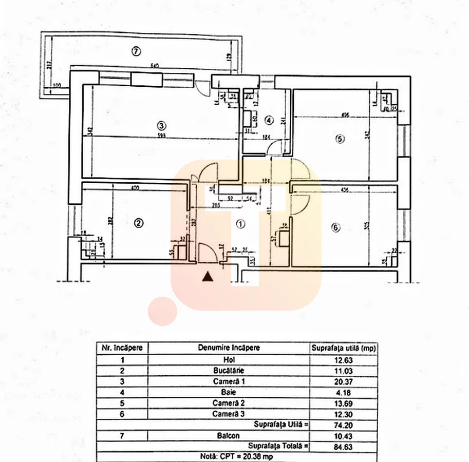
Apartament 3 camere Piatra Neamț Bulevardul Traian, decomandat, cu suprafață utilă de 84,63 mp (74,20 mp + balcon 10,43 mp) și suprafață construită de 92,33 mp, situat la etajul 4/4 al unui bloc construit în 1989, acoperit, fără lift.
Zona B-dul Traian – la A-uri, aproape de licee, școli, grădinițe, locuri de joacă, transport public. La câteva minute de Mall Galeria și McDonald’s.
Acest imobil este promovat de Toma Imobiliare, agenție cu peste 25 de ani experiență în consultanță și intermediere imobiliară în județul Neamț. Pentru detalii și vizionări, contactați: Daniel Toma – consultant imobiliar.
📞 Telefon: 0745 270 117
✉️ Email: info@toma-imobiliare.ro
Apartament 2 camere, 51,2 mp utili, circular, Mărăței, etajul 4/4…
35,000€ Negociabil
TOMA Imobiliare îți prezintă un apartament cu 3 camere ultracentral,…
79,000€ euro/negociabil